Driebergenstraat 206, 'S-GRAVENHAGE
verkocht onder voorbehoud
Details
Overdracht
- Vraagprijs
- € 249.500,- k.k.
- Status
- verkocht onder voorbehoud
- Aanvaarding
- in overleg
VvE checklist
- Inschrijving KVK
- Ja
- Jaarlijkse vergadering
- Ja
- Periodieke bijdrage
- Ja (€ 50,00 per maand)
- Reservefonds aanwezig
- Ja
- Onderhoudsplan
- Nee
- Opstalverzekering
- Ja
Bouw
- Soort woning
- appartement
- Soort appartement
- portiekwoning
- Aantal woonlagen
- 1
- Woonlaag
- 2
- Bouwvorm
- bestaande bouw
- Bouwjaar
- 1937
- Open portiek
- ja
- Huidige bestemming
- woonruimte
- Onderhoud binnen
- goed
- Onderhoud buiten
- goed
- Isolatie
- dubbel glas
Energie
- Energielabel
- C
- Verwarming
- cv ketel
- Warm water
- cv ketel
- C.V.-ketel
- combi-ketel van Bosch, eigendom
Oppervlakten en inhoud
- Woonoppervlakte
- 64 m²
- Buitenruimte oppervlakte
- 6 m²
Indeling
- Aantal kamers
- 4
- Aantal slaapkamers
- 3
Buitenruimte
- Ligging
- in woonwijk
Bergruimte
- Garage
- geen garage
- Parkeergelegenheid
- openbaar parkeren, betaald parkeren, parkeervergunningen
Omschrijving
IN RUSTIGE BUURT GELEGEN NETTE 4-KAMER 1E ETAGE WONING MET ENERGIELABEL C, 3 SLAAPKAMERS, RUIM BALKON EN GELEGEN OP EIGEN GROND.
Gelegen in de gewilde wijk Leyenburg een verzorgd en licht 4-kamer appartement. De woning bevindt zich op loopafstand van winkels aan het Monnickendamplein, scholen, openbaar vervoer (bus en tram) en het geliefde Zuiderpark.
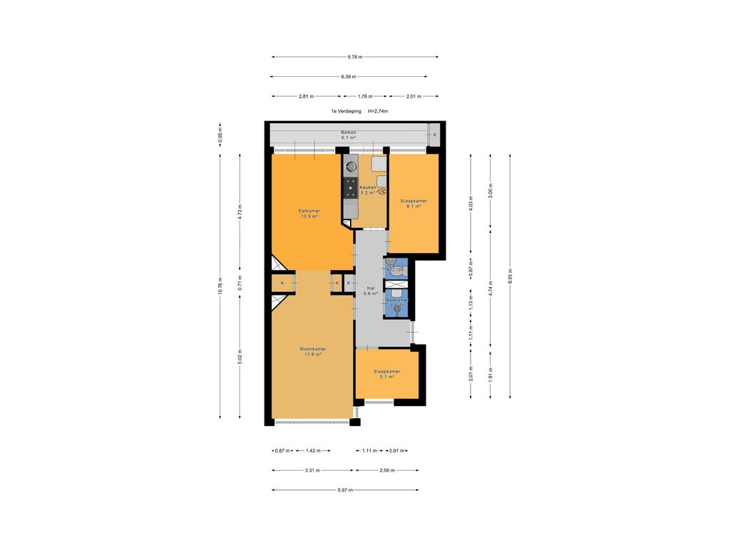
Indeling:
Toegang via open portiek met trap naar 1e etage, entree, hal met meterkast, separaat toilet en toegang tot alle vertrekken.
Ruime woo... Lees meer
IN RUSTIGE BUURT GELEGEN NETTE 4-KAMER 1E ETAGE WONING MET ENERGIELABEL C, 3 SLAAPKAMERS, RUIM BALKON EN GELEGEN OP EIGEN GROND.
Gelegen in de gewilde wijk Leyenburg een verzorgd en licht 4-kamer appartement. De woning bevindt zich op loopafstand van winkels aan het Monnickendamplein, scholen, openbaar vervoer (bus en tram) en het geliefde Zuiderpark.
Indeling:
Toegang via open portiek met trap naar 1e etage, entree, hal met meterkast, separaat toilet en toegang tot alle vertrekken.
Ruime woonkamer (ca. 5.02 x 3.31m) ensuite met 2 vaste kasten.
Nette keuken (ca. 3.00 x 1.76m) met 5-pits gaskookplaat, afzuigkap, oven, koelkast, vriezer en deur naar het balkon.
Eenvoudige doch nette badkamer (ca. 1.13 x 0.91m) met douche, wastafel en mechanische ventilatie.
Grote slaapkamer (ca. 4.73 x 2.81m), thans in gebruik als eetkamer, met deur naar het balkon.
2e slaapkamer (ca. 4.03 x 2.01m).
3e slaapkamer (ca. 2.56 x 2.01m).
Ruim balkon (ca. 6.39 x 0.95) over de gehele breedte van de woning met balkonkast.
Eigenschappen:
- eigen grond
- elektra 3 groepen
- rondom kunststof kozijnen met dubbel glas
- C.V.-combiketel Bosch
- energielabel C
- oplevering ca. januari'26
Vereniging van Eigenaren:
- bijdrage € 50,--/m
- incl. collectieve opstal- en glasverzekering
- V.v.E.-saldo € 8.022,29 per 30 september 20252
- 1/3 aandeel in de V.v.E.
- intern beheer
- volgens opgave:
* schilderwerk boeiboord voorzijde ca. '18
* dakbedekking vervangen ca. '18
* badkamer gerenoveerd ca. '20
* kunststof kozijnen nieuw geplaatst ca. '21
De biedingen verlopen via het platform van Eerlijk Bieden te vinden op hooghlanden.nl
