Perenstraat 43, 'S-GRAVENHAGE
€ 375.000,- k.k.
Details
Overdracht
- Vraagprijs
- € 375.000,- k.k.
- Status
- beschikbaar
- Aanvaarding
- direct
VvE checklist
- Inschrijving KVK
- Ja
- Jaarlijkse vergadering
- Ja
- Periodieke bijdrage
- Nee (€ 0,00 per maand)
- Reservefonds aanwezig
- Nee
- Onderhoudsplan
- Nee
- Opstalverzekering
- Nee
Bouw
- Soort woning
- appartement
- Soort appartement
- benedenwoning
- Aantal woonlagen
- 1
- Woonlaag
- 1
- Bouwvorm
- bestaande bouw
- Bouwjaar
- 1930
- Open portiek
- nee
- Huidige bestemming
- woonruimte
- Onderhoud binnen
- matig tot redelijk
- Onderhoud buiten
- goed
- Isolatie
- gedeeltelijk dubbel glas
Energie
- Energielabel
- C
- Verwarming
- cv ketel
- Warm water
- cv ketel
- C.V.-ketel
- combi-ketel van Vaillant HR, eigendom
Oppervlakten en inhoud
- Woonoppervlakte
- 79 m²
- Bergruimte oppervlakte
- 4 m²
- Buitenruimte oppervlakte
- 3 m²
Indeling
- Aantal kamers
- 3
- Aantal slaapkamers
- 2
Buitenruimte
- Ligging
- aan rustige weg, in woonwijk
- Tuin
- achtertuin met een oppervlakte van 48 m² en is gelegen op het noordoosten
Bergruimte
- Garage
- geen garage
- Parkeergelegenheid
- openbaar parkeren, betaald parkeren, parkeervergunningen
- Schuur/berging
- vrijstaand hout
Omschrijving
                                OP EEN GEWELDIGE LOCATIE IN DE VRUCHTENBUURT GELEGEN NETTE 3/4 -KAMER PARTERRE MET ENERGIELABEL C EN 2 OF 3 SLAAPKAMERS.
Gelegen in het verkeersluwe deel van de Perenstraat in de vruchtenbuurt. Met het strand, het centrum van Den Haag en Centraal Station op fietsafstand en de winkels in de Vlierboomstraat op loopafstand. Bovendien bereik je de uitvalswegen in korte tijd.
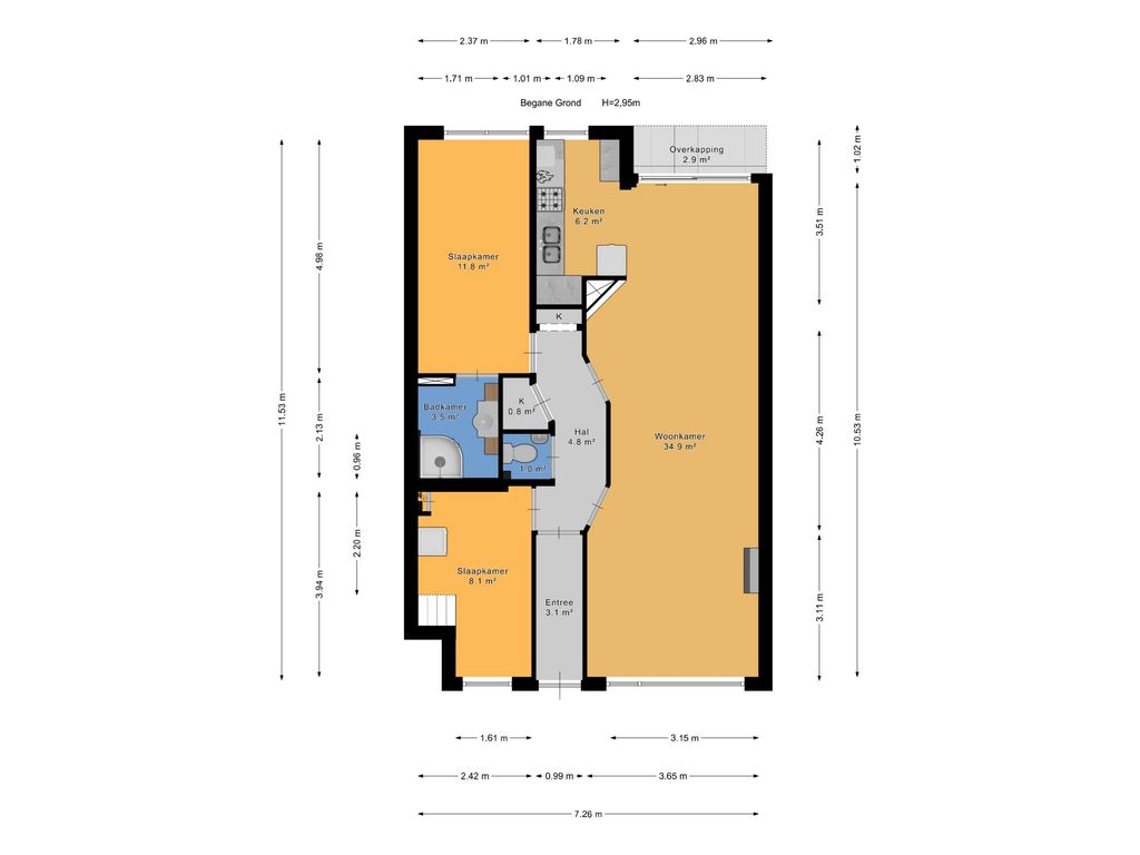
Indeling: 
Entree, ruime hal met meterkast.
Ruime doorgebroken wooneetkamer (ca. 10.53 x 3.65/3.15m) met schuifpui naar de ... Lees meer
                            
                            OP EEN GEWELDIGE LOCATIE IN DE VRUCHTENBUURT GELEGEN NETTE 3/4 -KAMER PARTERRE MET ENERGIELABEL C EN 2 OF 3 SLAAPKAMERS.
Gelegen in het verkeersluwe deel van de Perenstraat in de vruchtenbuurt. Met het strand, het centrum van Den Haag en Centraal Station op fietsafstand en de winkels in de Vlierboomstraat op loopafstand. Bovendien bereik je de uitvalswegen in korte tijd.
Indeling: 
Entree, ruime hal met meterkast.
Ruime doorgebroken wooneetkamer (ca. 10.53 x 3.65/3.15m) met schuifpui naar de achtertuin.
Nette half open keuken (ca. 3.51 x 1.78m) voorzien van onder- en bovenkasten, 4-pits gaskookplaat, afzuigkap, vaatwasser en deur naar de achtertuin
Nette badkamer (ca. 2.13 x 1.71m) met douche en wastafelmeubel.
Ruime slaapkamer aan de achterzijde (ca. 4.98 x 2.73m).
2e slaapkamer aan de voorzijde (ca. 3.94 x 2.24 / 1.61m).
Een 3e slaapkamer kan eenvoudig worden gerealiseerd door het plaatsen van een wand in de doorgebroken wooneetkamer.
Ruime achtertuin (ca. 7.60 x 6.34m) met houten schuur met elektra.                                                                                                                                                                                                                                                                                                                                                                                                                                                                                        
Kenmerken:
- woonoppervlak ca. 79 m2
- eeuwigdurende erfpacht ca. € 49,64/maand
- elektra 4 groepen
- grotendeels dubbel glas
- C.V.-combiketel Vaillant HR
- energielabel C
- niet zelf bewoond door eigenaar
- oplevering kan snel
Vereniging van Eigenaren:
- V.v.E is niet actief
- 1/3 aandeel
- dakonderhoud komt voor rekening van de topetage met dakopbouw, dus niet voor deze parterre-woning
Biedingen verlopen via het platform van Eerlijk Bieden te vinden op hooghlanden.nl
                        
 
                                 
                                 
                                 
                                 
                                 
                                 
                                 
                                 
                                 
                                 
                                 
                                 
                                 
                                 
                                 
                                 
                                 
                                 
                                 
                                 
                                 
                                 
                                 
                                 
                                 
                                

