Van de Veldestraat 16, 'S-GRAVENHAGE
€ 275.000,- k.k.
Details
Overdracht
- Vraagprijs
- € 275.000,- k.k.
- Status
- beschikbaar
- Aanvaarding
- direct
VvE checklist
- Inschrijving KVK
- Ja
- Jaarlijkse vergadering
- Ja
- Periodieke bijdrage
- Ja (€ 150,00 per maand)
- Reservefonds aanwezig
- Ja
- Onderhoudsplan
- Ja
- Opstalverzekering
- Ja
Bouw
- Soort woning
- appartement
- Soort appartement
- portiekflat
- Aantal woonlagen
- 1
- Woonlaag
- 2
- Bouwvorm
- bestaande bouw
- Bouwjaar
- 1911
- Open portiek
- ja
- Huidige bestemming
- woonruimte
- Onderhoud binnen
- goed tot uitstekend
- Onderhoud buiten
- goed
- Voorzieningen
- mechanische ventilatie, tv kabel
- Isolatie
- dubbel glas
Energie
- Energielabel
- E
- Verwarming
- cv ketel
- Warm water
- cv ketel
- C.V.-ketel
- gas gestookte combi-ketel uit 2019 van Intergas HR, eigendom
Oppervlakten en inhoud
- Woonoppervlakte
- 71 m²
- Buitenruimte oppervlakte
- 3 m²
Indeling
- Aantal kamers
- 4
- Aantal slaapkamers
- 3
Bergruimte
- Garage
- geen garage
- Parkeergelegenheid
- openbaar parkeren, betaald parkeren, parkeervergunningen
Omschrijving
                                IN RUSTIGE STRAAT GELEGEN ZEER FRAAIE 1E ETAGE 4-KAMERWONING MET 3 SLAAPKAMERS, BALKON EN GELEGEN OP EIGEN GROND.
Door de zeer centrale ligging bent u binnen enkele minuten in de binnenstad van Den Haag. Een supermarkt, basisschool, voortgezet onderwijs, de Haagse Hogeschool, de Haagse markt en diverse sportfaciliteiten zijn op loopafstand bereikbaar.
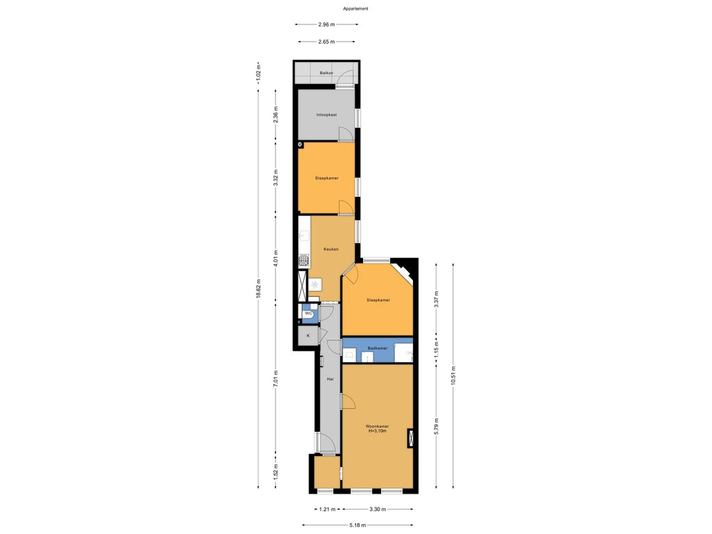
Indeling:
Toegang via open portiek met trap naar 1e etage.
Entree, gang met vaste kast en modern toilet.
Lichte wooneetkamer (ca. 5.79 x 3.30m... Lees meer
                            
                            IN RUSTIGE STRAAT GELEGEN ZEER FRAAIE 1E ETAGE 4-KAMERWONING MET 3 SLAAPKAMERS, BALKON EN GELEGEN OP EIGEN GROND.
Door de zeer centrale ligging bent u binnen enkele minuten in de binnenstad van Den Haag. Een supermarkt, basisschool, voortgezet onderwijs, de Haagse Hogeschool, de Haagse markt en diverse sportfaciliteiten zijn op loopafstand bereikbaar.
Indeling:
Toegang via open portiek met trap naar 1e etage.
Entree, gang met vaste kast en modern toilet.
Lichte wooneetkamer (ca. 5.79 x 3.30m) met toegang tot zijkabinet (ca. 1.52 x 1.21m).
Moderne keuken (ca. 4.01 x 2.65m) voorzien van onder- en bovenkasten, 4-pits gaskookplaat, oven, afzuigkap, magnetron, koelkast, vriezer en vaatwasser.
Fraaie luxe badkamer (ca. 3.30 x 1.15m) voorzien van douche en vaste wastafel.
Grote slaapkamer (ca. 3.37 x 3.30m) met schouw.
2e slaapkamer (ca. 3.32 x 2.65m) met deur naar het balkon.
3e slaapkamer (ca. 2.65 x 2.36m) thans in gebruik als inloopkast.
Balkon (ca. 2.96 x 1.02m) aan de achterzijde.
- gelegen op eigen grond
- elektra 6 gr. + a.l.s.
- rondom dubbel glas
- C.V.-combiketel Intergas HR 2019, laatste onderhoud '25
- niet zelf bewoond door eigenaar
- oplevering kan snel
* Vereniging van Eigenaren:
- actieve V.v.E. bijdrage € 150,--/maand
- inclusief collectieve opstal-, glas- en W.A.-verzekering
- professioneel beheer
- volgens opgave onderhoud uitgevoerd:
* keuken nieuw geplaatst 2020
* badkamer nieuw geplaatst 2020
* toilet nieuw geplaatst 2020
* schilderwerk kozijnen achterzijde ca. 2018
Deze fraaie woning kan zonder opknapkosten zo worden betrokken.
                        
 
                                 
                                 
                                 
                                 
                                 
                                 
                                 
                                 
                                 
                                 
                                 
                                 
                                 
                                 
                                 
                                 
                                 
                                 
                                 
                                 
                                 
                                 
                                 
                                