Zijdewindestraat 93, ROTTERDAM
€ 650.000,- k.k.
Details
Overdracht
- Vraagprijs
- € 650.000,- k.k.
- Status
- beschikbaar
- Aanvaarding
- in overleg
Bouw
- Soort woning
- woonhuis
- Soort woonhuis
- eengezinswoning
- Type woonhuis
- tussenwoning
- Aantal woonlagen
- 4
- Bouwvorm
- bestaande bouw
- Bouwjaar
- 2003
- Huidige bestemming
- woonruimte
- Onderhoud binnen
- goed
- Onderhoud buiten
- goed
- Isolatie
- dakisolatie, muurisolatie, vloerisolatie, dubbel glas, kierdichting
Energie
- Energielabel
- A+
- Verwarming
- cv ketel
- Warm water
- cv ketel
- C.V.-ketel
- gas gestookte combi-ketel uit 2022 van Vaillant hr, eigendom
Oppervlakten en inhoud
- Woonoppervlakte
- 135 m²
- Perceeloppervlakte
- 95 m²
- Inhoud
- 466 m³
- Bergruimte oppervlakte
- 7 m²
- Buitenruimte oppervlakte
- 12 m²
Indeling
- Aantal kamers
- 5
- Aantal slaapkamers
- 3
Buitenruimte
- Ligging
- aan rustige weg, in woonwijk
- Tuin
- achtertuin met een oppervlakte van 47 m² en is gelegen op het westen
Bergruimte
- Garage
- geen garage
- Parkeergelegenheid
- openbaar parkeren, betaald parkeren, parkeervergunningen
- Schuur/berging
- vrijstaand hout
Omschrijving
RUIME EN INSTAPKLARE EENGEZINSWONING (2003) MET ENERGIELABEL A+, 3 RUIME SLAAPKAMERS, 2 BADKAMERS, TUIN MET ACHTEROM EN AFGEKOCHTE ERFPACHT.
Gelegen nabij Rotterdam Centrum, op loopafstand van het Centraal Station en diverse winkels en eetgelegenheden. De combinatie van de centrale ligging met een gezellige, dorpse sfeer is zeer geliefd.
Indeling:
Entree, grote hal (ca. 3.51 x 2.70m) met modern toilet, meterkast en toegang tot de ruime woonkeuken.
Grote luxe woonkeuken (ca. 4.5 x 4.37m) met k... Lees meer
RUIME EN INSTAPKLARE EENGEZINSWONING (2003) MET ENERGIELABEL A+, 3 RUIME SLAAPKAMERS, 2 BADKAMERS, TUIN MET ACHTEROM EN AFGEKOCHTE ERFPACHT.
Gelegen nabij Rotterdam Centrum, op loopafstand van het Centraal Station en diverse winkels en eetgelegenheden. De combinatie van de centrale ligging met een gezellige, dorpse sfeer is zeer geliefd.
Indeling:
Entree, grote hal (ca. 3.51 x 2.70m) met modern toilet, meterkast en toegang tot de ruime woonkeuken.
Grote luxe woonkeuken (ca. 4.5 x 4.37m) met kookeiland, 4-pits inductiekookplaat met kookveldafzuiging, oven, combi magnetron, koelkast, vriezer, vaatwasser en deur naar de achtertuin.
Trap naar 1e etage, alwaar overloop.
Grote wooneetkamer (ca. 8.19 x 4.54/3.55m) met aan 2 zijden lichtinval.
Trap naar 2e etage, alwaar overloop.
Fraaie luxe badkamer ensuite (ca. 2.51 x 2.02m) met inloopdouche, wastafelmeubel en toilet.
Grote voorslaapkamer (ca. 4.54 x 2.78/2.62m).
2e ruime slaapkamer aan de achterzijde (ca. 3.45 x 2.51m).
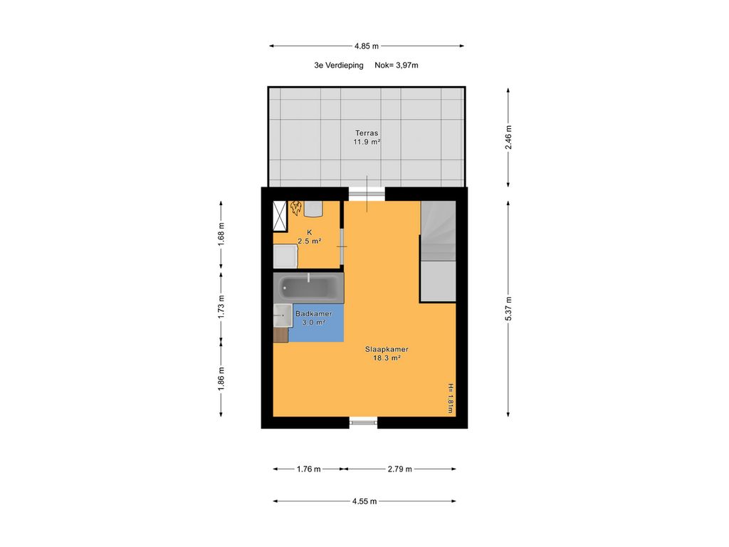
Trap naar 3e etage.
2e mooie badkamer ensuite (ca. 1.76 x 1.73m) met ligbad en wastafelmeubel.
3e ruime slaapkamer (ca. 4.55 x 2.66m) met een en deur naar het terras.
Groot dakterras (ca. 4.85 x 2.46m) gelegen op het Westen
Royale achtertuin (ca. 9.56 x 4.90m) met houten schuur met elektra en achterom via gesloten achterpad.
Kenmerken:
- erfpacht afgekocht tot 31 december 2093
- woonoppervlakte ca. 135 m2
- elektra 12 groepen + 3 x a.l.s.
- C.V.-combiketel Vaillant HR '22
- rondom dubbel glas HR++
- energielabel A+
- oplevering vanaf eind februari '26
volgens opgave:
* keuken nieuw geplaatst '22
* badkamer nieuw geplaatst '24
* WTW-unit vervangen '24 met garantie
* schilderwerk buiten voor- en achterzijde + schuur '24
Deze fraaie woning kan zonder opknapkosten zo worden betrokken.
De biedingen verlopen via het platform van Eerlijk Bieden te vinden op hooghlanden.nl.





